À¼ÖÝÐÂÇø»¯¹¤Ô°ÇøÎÛË®´¦Öóͷ£³§£¨Ò»ÆÚ£©ÏîĿλÓÚ»¯¹¤Ô°Çø×îÄ϶ˣ¬£¬£¬£¬Î³Îåʮ·ÒÔÄÏ£¬£¬£¬£¬¾ÈýÊ®Îå·ÒÔ¶«£¬£¬£¬£¬¾ÈýÊ®Áù·ÒÔÎ÷ÇøÓò¡£¡£¡£ÎÛË®´¦Öóͷ£³§£¨Ò»ÆÚ£©ÏîÄ¿¹æÄ£2.5Íòm3/d£¬£¬£¬£¬×ÜÕ¼µØÃæ»ý123Ķ¡£¡£¡£ÏÈÐн¨Éè¹æÄ£Îª1.25Íòm3/d£¨²¿·Ö¹«Óù¤³Ì°´2.5Íòm3/dµÄ´¦Öóͷ£¹æÄ£Ò»´ÎÐÔ½¨É赽룩£¬£¬£¬£¬ºóÆÚÀ©½¨¹æÄ£Îª1.25Íòm3/d¡£¡£¡£Ò»ÆÚÏÈÐн¨É蹤³ÌÏîÄ¿×ÜͶ×ÊΪ2.98ÒÚÔª¡£¡£¡£

ÎÛË®´¦Öóͷ£³§£¨Ò»ÆÚ£©ÏîÄ¿Óɶ«»ª¹¤³Ì¿Æ¼¼¹É·ÝÓÐÏÞ¹«Ë¾£¨Ô»¯¹¤²¿µÚÈýÉè¼ÆÔº£©Éè¼Æ£¬£¬£¬£¬Ö÷Òª¼ç¸º¼¯Öдï±ê´¦Öóͷ£»¯¹¤Ô°Çø£¨¶«Çø£©¸÷ÆóÒµ¾Ô¤´¦Öóͷ£ºóÖª×ãÔ°ÇøÄɹܱê×¼µÄÉú²ú·ÏË®£¬£¬£¬£¬Ô°ÇøÆóÒµÅÅ·Å·ÏË®¾ÆóÒµÅÅÎÛ³ö¿ÚÆÊÎöСÎݼì²â¼°¸ñ£¬£¬£¬£¬½øÈëÎÛË®´¦Öóͷ£³§¾ÙÐм¯Öд¦Öóͷ££¬£¬£¬£¬ÆóÒµ³ö¿ÚÆÊÎöСÎݼà²âÊý¾Ýͬ²½½ÓÈëÎÛË®´¦Öóͷ£³§DCS¿ØÖÆÏµÍ³¡£¡£¡£¾ÎÛË®´¦Öóͷ£³§¼¯Öд¦Öóͷ£ºóµÖ´ï¡¶³ÇÕòÎÛË®´¦Öóͷ£³§ÎÛȾÎïÅŷűê×¼¡·£¨GB18918-2002£©Ò»¼¶ A ±ê×¼µÄβˮÅÅÈëÏÂÓÎË®Ì壨ÊÕ֧ˮָ±ê¼û±í1£©¡£¡£¡£
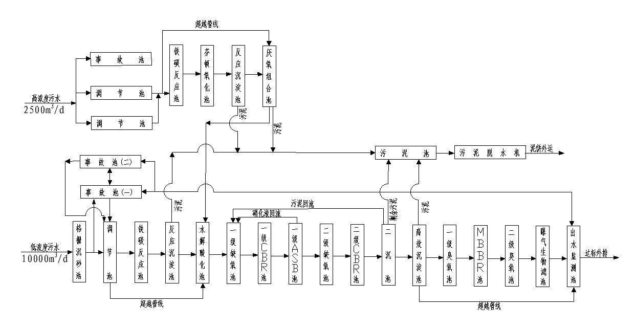
ÎÛË®´¦Öóͷ£³§£¨Ò»ÆÚ£©ÏîÄ¿ÒÔÉú»¯·¨ÎªÖ÷Òª´¦Öóͷ£¹¤ÒÕ£¬£¬£¬£¬×°ÖÃÁ¬ÏµÔ°ÇøµÄ¹¤ÒµÆ«ÏòºÍÈëפÆóÒµµÄÏÖÕæÏàÐΣ¬£¬£¬£¬Æ¾Ö¤¡°·ÖÀàÍøÂç¡¢·ÖÖÊ´¦Öóͷ£¡±µÄÔÔò£¬£¬£¬£¬½«Ô°ÇøµÄÉú²ú·ÏË®¾ÙÐÐÆéá«Å¨Çø±ðÖ®·Ö£¬£¬£¬£¬¸ßŨÉú²ú·ÏË®½ÓÄÉ¡°Ìú̼΢µç½â+·Ò¶ÙÑõ»¯+·´Ó¦³Áµí+ÑáÑõ·´Ó¦¡±µÄ¹¤ÒÕÔ¤´¦Öóͷ£ºó²¢ÈëµÍŨÉú²ú·ÏË®ÖмÌÐøÉú»¯´¦Öóͷ££»£»£»µÍŨÉú²ú·ÏË®½ÓÄÉ¡°Ìú̼΢µç½â+·´Ó¦³Áµí+Ë®½âËữ+Éú»¯Á½¼¶A/O+¶þ³Á+³ôÑõÁ½¼¶Éî¶È´¦Öóͷ£¡±¹¤ÒÕõè¾¶£¨¹¤ÒÕÁ÷³Ìͼ¼ûͼ1£©¡£¡£¡£¹¤ÒÕϵͳ˫Ïß²¢ÁªÉèÖò¢ÉèÖÃÓâÔ½¹ÜÏߣ¬£¬£¬£¬ÏµÍ³ÔËÐÐÎÞа¿É¿¿¡£¡£¡£ÏîÄ¿Ö÷Òª½¨Éè¸ñÕ¤³Áɰ³Ø¡¢Ê¹ʳغ͵÷Àí³Ø¡¢Ìú̼·´Ó¦³Ø¡¢·Ò¶ÙÑõ»¯³Ø¡¢·´Ó¦³Áµí³Ø¡¢ÑáÑõ·´Ó¦³Ø¡¢Éú»¯×éºÏ³Ø¡¢¶þ³Á³Ø¡¢¸ßЧ³Áµí³Ø¡¢Éî¶È´¦Öóͷ£×éºÏ³Ø¡¢³öË®¼à²â³ØµÈÖ÷Òª¹¤ÒÕÐÞ½¨Î£¬£¬£¬ÅäÌ×½¨Éè¹Ä·ç»ú·¿¡¢¼ÓÒ©¼ä¡¢ÎÛÄàÍÑË®¼ä¡¢Éú²úÂ¥µÈ¸¨ÖúÉú²úÉèÊ©¡£¡£¡£

Ô°Çø½¨É輯ÖÐʽÎÛË®´¦Öóͷ£³§Ö¼ÔÚÓÐÓÃÕûºÏ×ÊÔ´¡¢¼¯ÖÐרҵ»¯´¦Öóͷ£Ô°Çø¸÷ÆóÒµµÄÎÛË®£¬£¬£¬£¬½µµÍÔ°ÇøÕûÌåÎÛË®´¦Öóͷ£Óöȣ¬£¬£¬£¬ÎªÔ°ÇøÂ䵨ÆóÒµ¼õÇáÅÅÎÛѹÁ¦¡£¡£¡£¸ÃÏîÄ¿µÄ½¨³É£¬£¬£¬£¬½«½â¾öÆóÒµµÄÅÅÎÛÀ§ÈÅ£¬£¬£¬£¬½µµÍÆóÒµÎÛË®µ¥¶À´¦Öóͷ£µÄ×ۺϱ¾Ç®£¬£¬£¬£¬¶ÔÖÎÀíË®ÎÛȾ£¬£¬£¬£¬±£»£»£»¤Ë®ÖʺÍÉú̬ƽºâ¾ßÓÐÖ÷Òª×÷Óᣡ£¡£Í¬Ê±£¬£¬£¬£¬Ò²ÎªÈëÔ°ÆóÒµÓªÔìÁËÓÅÒìµÄͶ×ÊÇéÐΣ¬£¬£¬£¬ÓÐÖúÓÚÍÆ¶¯À¼ÖÝÐÂÇø»¯¹¤Ô°ÇøµÄ×ÜÌåÍýÏ뽨É裬£¬£¬£¬¸øÀ¼ÖÝÐÂÇøÒÔ¼°»¯¹¤Ô°ÇøµÄÉú³¤´øÀ´ÓÅÒìµÄÉç»áÐ§Òæ¡£¡£¡£